|
PLANNING COMMISSION REPORT Regular Agenda - Public Hearing Item
|
ITEM NO. 3C PRELIMINARY DEVELOPMENT PLAN FOR ALVAMAR; 1809 CROSSGATE DR (SLD)
PDP-15-00247: Consider a Preliminary Development Plan for Alvamar, containing approximately 51.85 acres and located at 1809 Crossgate Drive. The plan proposes the construction of a new entrance road from Bob Billings Parkway, Multi-Dwelling Structures containing 292 dwelling units, Active and Passive Recreation uses including a new clubhouse and event center, and commercial uses including a 24 room Hotel, fitness center and banquet/reception facility. The Assisted and Independent Living use containing 124 dwelling units has been removed from the proposed application. Submitted by Paul Werner Architects, for Alvamar Inc., property owner of record.
|
STAFF RECOMMENDATION ON PRELIMINARY DEVELOPMENT PLAN: Planning Staff recommends approval of Alvamar Preliminary Development Plan (also serving as the Preliminary Plat) based upon the findings of fact presented in the body of the staff report and forwarding a recommendation for approval to the City Commission subject to the following conditions:
1. Provision of a revised Preliminary Development Plan to include the following notes and changes: a. Proposed Zoning for all lots should be listed as “RM24-PD”. b. A complete list of allowed uses, as reflected in this report, shall be added to the face of the Preliminary Development Plan. c. Revise plan to include a note regarding property owners waiving rights to protest changes to the plan. Lacking such note, all property owners will be required to participate in any future application or change to the approved plan. d. Revised plan shall include a note that states the applicant shall submit a complete drainage study for review and approval by the City Stormwater Engineer prior to the submission of a Final Development Plan for any lot or phase of the development. e. Revised plan shall include a note that states sidewalks shall be required on both sides of all public and private streets. f. Provision of a note on the face of the plan stating that the property owner shall maintain common open space. g. Provision of a revised plan to include specific notes regarding proposed Lot 2: i. Sheet two shall be revised and parking summary updated to correctly reflect total proposed units 292 residential units and 422 bedrooms for Lot 2. ii. Provision of a site summary for Lot 2 that includes existing and proposed building cover, surface coverage, and open space. iii. Provision of a note that states that the required recreational open space for residential uses on Lot 2 shall be satisfied through resident use of the pool amenities located on Lot 3. h. Applicant shall submit drainage plan for review and approval by the City Stormwater Engineer prior to the approval of any Final Development Plan. i. Provision of a note on the plan that indicates that the Final Development Plans for this property are required to be presented to the Planning Commission for approval following the notice requirements of Section 20-1301(q). j. Revision of the Preliminary Development Plan to include a note that a phasing plan shall be submitted with the first Final Development Plan for demolition of the existing clubhouse on Lot 1, construction of improvements proposed on Lots 2 and 3, and street and utility installation. Said phasing plan shall address construction routes to the development areas. k. Provision of a note on the plan that shared parking review and final parking space requirements will occur with review of each Final Development Plan submission. l. Provision of a note on the plan that states the banquet/reception facility shall only be used for conventional banquet/reception uses. The Nightclub use assigned to this facility for Development Code purposes shall not provide a right to use the facility as a Bar or Nightclub operation. m. Provision of a note that states a revised Traffic Impact Study, stating proposed uses, shall be required with the submission of a future application for a Preliminary Development Plan for Lot 1 and Lot 4. n. Provision of a revised plan to show and/or note that private parking along the golf course holes will be screened from errant golf balls per Staff approval.
2. The following notes and changes are required to meet minimum Subdivision Requirements: a. Revise right-of-way for Crossgate Extension to show 60’ of right-of-way for a local street. b. Revise plan to add a note that roundabouts will need to be designed appropriately with Public Improvement Plans to support turning truck traffic and pedestrian crossings. c. Revise drawing to show access connection to existing parking lot on Lot 1 and connection to Quail Run, the existing private street on the west side of the Crossgate Drive extension. d. Revise drawing to clearly show proposed lot boundaries and existing lot boundaries of the Jayhawk Golf Training Center Addition and include a note stating the lot will be replatted with a future Final Plat that includes Lot 2 and/or Lot 3, whichever occurs first. |
Reason for Request: Requirement for concurrent submission with RM24-PD overlay district zoning. Application intended to provide preliminary information and address initial land use approvals prior to additional review of this property.
KEY POINTS
· A Preliminary Development Plan includes a Preliminary Plat review. The applicant has previously submitted a separate application for a Preliminary Plat. Subdivision review is included in this review. This application replaces the previous Preliminary Plat application.
· Exact uses for proposed Lot 1 and Lot 4 have not been identified. These lots will be subject to the approval of a revised Preliminary Development Plan and related public hearing in the future.
· Allowed uses shall be approved as part of the Development Plan and a list of uses shall be included on the face of the Plan.
· Section 20-701(f)(1) allows commercial uses in the RS and RM districts as part of a Planned Development when a PD includes at least 10 acres and over 100 dwelling units.
· This project includes a private street segment located in the center of the proposed residential development along the existing alignment of Crossgate Drive that will connect to a public street segment at the north and south ends.
· The total number of residential units proposed for Lot 2 is 292. The applicant will revise notes on sheet 2 of the proposed development plan to correspond with the design concept shown on sheet 4 of the plan.
· The original application included land use for Lot 4 as an Assisted Living residential use. This use has been excluded from the site revisions and no specific use is proposed for Lot 4 at this time.
ASSOCIATED CASES/OTHER ACTION REQUIRED
Associated Cases
· Z-14-00552; proposed RM24-PD District.
· SUP-15-00389; Active Recreation Uses in RM24-PD district.
· PP-14-00554; Alvamar One Preliminary Plat; application replaced by PDP-15-00247.
Other Action Required
· City Commission approval of Preliminary Development Plan and requested modifications.
· Submission and approval of Final Development Plan and Final Plat.
· Submission and approval of Public Improvement Plans prior to recording Final Plats.
· Recording of Final Development Plan and Final Plat with the Douglas County Register of Deeds.
· Building permits must be obtained prior to construction of structures.
ATTACHMENTS
PUBLIC COMMENT
· See attached list.
General information
· For current and surrounding zoning and land use please refer to Z-14-00552.
· Standard applications include a site surface summary for each individual lot within a proposed development. At this time that information is not available.
|
SITE SUMMARY |
|
|||
|
Lot |
Area (Acres) |
Maximum Density Allowed at 24 DU/AC |
Proposed Use |
|
|
Lot 1 |
2.63 |
Maximum: 63 Units Proposed: 0 Units |
Existing Clubhouse to be removed in future phase. Proposed use not identified. Residential uses are not proposed for this lot at this time. Parking lot noted to remain after clubhouse is razed. Required 100 parking spaces for existing clubhouse; 138 parking spaces existing and 63 remaining after development of Lot 2. |
|
|
Lot 2 |
15.98 |
Maximum: 384 Units Proposed: 292 Units |
Multi-Dwelling Residential. Total 292 units Total 422 bedrooms Required Parking 452; 544 parking spaces proposed. |
|
|
Lot 3 |
13.99 |
Maximum: 336 Units Proposed: 0 Units |
Mixed uses including Active and Passive Recreation and Commercial uses including banquet/reception facility, Hotel and fitness center as well as accessory uses to golf course facility. Residential uses are not proposed on this lot at this time. Required parking 768[1] spaces; 359 parking spaces proposed. |
|
|
Lot 4 |
17.32 |
Maximum: 416 Units Proposed: 0 Units |
Future development, with no use identified at this time. Original application for Planned Development included an Assisted Living use. No review on Lot 4 is provided. Public Hearing for development of Lot 4 as a Preliminary Development Plan will be required. |
|
|
Total |
49.92 |
Maximum allowed by requested RM24 zoning: 1,198 Units Proposed: 292 Units |
1,226 required parking spaces per staff calculation 812 required parking spaces per applicant calculation 966 spaces proposed – all uses |
|
PART A: Preliminary Plat Review
Subdivision Review Summary
The proposed Preliminary Development Plan replaces the separate application for a preliminary plat submitted in 2014. The original development concept included 6 individual lots. This revised plan includes only 4 lots. The project also includes the extension of public street right-of-way north from Clinton Parkway and south from Bob Billings Parkway. Perimeter utility easements are proposed around lots and a 30’ combined access and utility easement is proposed through Lot 2.
· Proposed lots exceed the minimum lot size requirements for the RM24 district as shown in the Site Summary table.
· Each new lot includes access to a public street via the extended Crossgate Drive right-of-way.
· Additional easement review will be required as part of a Final Plat and future Final Development Plan applications.
Compliance with Zoning Regulations
The proposed lot sizes exceed the 6,000 square feet minimum lot size for the proposed RM24 Base Zoning District. All lots are adjacent to a public street. The proposed lots include both existing platted and unplatted land. Notably, the remaining portion of the Final Plat of Jayhawk Golf Training Center Addition will be required to be replatted as a result of this project. Based on the proposed development, that remaining property would not have direct access to a public street as pictured below.
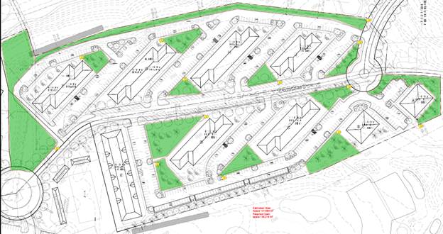
Alvamar County Club No. 2 Subdivision/ Quail’s Nest at Alvamar Condominium Woodfield Meadows West Subdivision Jayhawk Golf Training Center Addition Lot 4 Lot 3 Lot 2 Lot 1

A future final plat for Lots 2 or 3 that includes any portion of the existing Jayhawk Golf Training Center Addition subdivision will need to address the remaining portion of the existing platted lot. A variance will be required for creation of a lot without direct access to a public right-of-way. Access to the partial lot is provided through proposed Lot 3. The remaining portion of the Jayhawk Golf Training Center Addition lot is outside of the boundary of the proposed development. Staff recommends this Preliminary Development Plan be revised to clearly show the lot boundary and to include a note regarding the replatting of the lot at the time any portion of Lot 2 or 3 is final platted in the future.
Streets and Access
|
Proposed Public Street ROW North Access to Lot 2 – Inset A |
Access to this area is provided by Crossgate Drive. This local street includes public right-of-way and an access easement (Private Street). The proposed plat extends the public portion of the right-of-way to the north as a cul-de-sac. An extended access easement will connect the two public street segments.
New Crossgate Drive, North Leg: An additional public street extension is proposed south from Bob Billings Parkway, Inset A. This street will be located west of the homes in Woodfield Meadows West Subdivision. The street will be required to meet minimum City design standards and at least 60’ of ROW is required. Design will require sidewalks on both sides of the street.
Details of this proposed street are shown on page 3 of the Preliminary Development Plan. In addition to this street improvement, turn lanes on Bob Billings Parkway are also being considered by the City. The intersection of the existing private street segment of Crossgate Drive that serves the Woodfield Meadows West Subdivision will include additional design changes at both the north and south ends to prevent cut-through traffic. The design of these intersections has not been completed at this time and will be included as part of a future Final Development Plan, Final Plat and public improvement plans. Options for access could include a restricted gate access, one-way traffic control at one or both ends, or other unidentified traffic calming measures.
Crossgate Drive extended, South Leg: The project also includes a public street extension of Crossgate Drive that begins at the existing cul-de-sac that serves the existing clubhouse and Quail’s Nest at Alvamar Condominiums. Insets B and C below show the existing and proposed public street extension of Crossgate Drive to the north. The proposed plan shows 60’ of right-of-way along proposed Lot 4 and changing to 50’ of right-of-way from the existing cul-de-sac to the north where it terminates in a new cul-de-sac in the central portion of the development. This street segment is shown on sheets 5 and 6 of the Preliminary Development Plan. A 50’ street design standard is applicable for “limited local streets” per Section 20-810 (5). Staff recommends the plan be revised to show a full 60’ of right-of-way to the cul-de-sac due to the number of dwelling units and nonresidential uses this street will serve.
|
Existing ROW -A – Inset B |
Proposed ROW – Inset C |
Crossgate Drive, Private Street Segment, Middle Leg: The private street segment of Crossgate Drive is an existing condition that arguably is not currently designed to accommodate the proposed density. It does not meet the City street standards. Private Streets are allowed in Planned Developments. This street segment is proposed as a 30’ access easement, typical of private streets. The easement does not include the angled parking which is located outside of the easement.
|
30’ Access Easement - Private Street through Lot 2- Inset D |
The current application shows the private street segment of Crossgate Drive, Inset D as a 30’ access easement. The benefit of the use of the easement is to provide reduced building setbacks measured from the curb line to allow buildings to be set closer to the “street” than would be allowed with a public street and full public right-of-way. The applicant proposes, in addition to the 30’ of access easement an additional 10’ of utility easement on the west side and 20’ of utility easement on the east side. This combined space is equal to a public street right-of-way width for a local street. Preliminary review indicates this street configuration will accommodate the increased traffic with the improvements that are proposed.
Proposed Lot 1 is the location of the existing clubhouse located at the north end of Crossgate Drive, public street segment in the center of the development. No changes are proposed at this time to the existing development of this part of the project.
This property is only affected by the future subdivision that will replat the boundary and will include both portions of an existing platted subdivision and unplatted land that is part of the existing golf course. The lot exceeds the minimum area requirements and is adjacent to a public street through the extension of Crossgate Drive to the north.

The applicant has indicated that the existing clubhouse will be removed and a future Preliminary Development Plan will be submitted. The plan also notes that the existing parking lot with 63 spaces will remain. Extension of the public street will result in loss of some of the existing parking. The plan does not provide timing for the removal of the existing clubhouse. (Refer to sheet 5 of the Preliminary Development Plan.) No new residential uses are proposed on Lot 1 with this application. Future uses, residential or otherwise, on this lot will require a revised Preliminary Development Plan subject to a public hearing. The original submittal did include a residential component. The density, building type and specific land use in this application is unknown.
|
Existing Site Summary |
|||
|
Existing Platted Lot |
2.9 Acres |
|
|
|
Proposed Platted Lot |
2.63 Acres |
|
|
|
Existing Site Plan Zoning at time of approval was RM-1 and RS-2 |
UPR-4-5-82 2.88 Acres |
2 story building 26,890 SF |
Required Parking: 50 space per 9 holes; 100 spaces required. 138 spaces provided per aerial. *63 spaces to remain |
|
Existing Use |
Clubhouse and parking |
||
|
Proposed Use |
Unlisted; Revised Preliminary Development Plan will be required prior to site redevelopment. No residential uses are proposed for this lot at this time. |
||
|
|
Proposed Lot 2 is located at the north end of the development area between the existing clubhouse and the south end of the Woodfield Meadows PUD. Access to this area would include the extension of a public street from Bob Billings Parkway some distance, then changing to a private street through the proposed residential development and intersecting the south leg of Crossgate Drive extended north from Clinton Parkway. This area is currently used for the golf course. The existing private street segment of Crossgate Drive would be generally retained. This area also includes portions of the Jayhawk Golf Training Center. Like proposed Lot 1, this property includes both platted and unplatted land.
The proposed plan for this lot includes 9 multi-story, multi-dwelling buildings with both surface and covered parking. The private street through the center of the multi-dwelling residential development is designed to connect at the north and south ends to a public street and designed with angled parking. Public Streets do not generally include “required parking.”
The plan notes that this lot will include a total of 292 units with an overall density of 18.27 units per acre. This density is less dense than the RM24 District would permit. Fully developed, at the maximum density of 24 dwellings units per acre, 384 units could be developed on this lot.
Off-street parking for this use is required at one space per bedroom plus one space per each 10 units. The plan indicates that the 292 units will include 422 bedrooms. The ratio of bedrooms per unit is not identified. The plan notes that 465 parking spaces are required for 422 bedrooms in 292 units. This is an error and should be shown as 452 spaces required. The plan notes 544 parking spaces provided. These excess spaces are located along both sides of the private street outside of the 30’ access easement. The existing private street has been noted by area residents as frequently used for parking during golf tournaments because the facility lacks adequate parking today. This excess parking is expected to accommodate uses within the development as shared parking. Parking is discussed in detail later in this report.
Excess parking requires mitigation of stormwater impacts. This project has been submitted without a drainage study. A comprehensive drainage study is required for this development. Additional review of this element will be required with the future application of both a Final Plat and a Final Development Plan.
Existing Site Summary |
|
|
Existing Platted Lot |
Site includes unplatted land and portion of platted property known as Jayhawk Golf Training Center Addition. |
|
Proposed Platted Lot |
15.98 Acres |
|
Existing Site Plan |
There are no site plan or subdivision plats that show existing development. Golf course is unplatted. |
|
Existing Use |
Existing improvements include private street – Crossgate Drive and portions of Alvamar Golf Course. |
|
Proposed Use |
292 Multi-Dwelling Residential Units 9 multi-story buildings; 422 bedrooms. |
|
E F G H J D C B A
292 Units and 422 Bedrooms noted on sheet 2. *287 units noted on sheet 4. Table does not include all spaces provided, only those shown in parking areas near individual buildings. |
Building |
Units |
Stories |
Parking provided by unit |
||||||||||||||||||
|
A |
8 |
2 |
23 |
|||||||||||||||||||
|
B |
8 |
2 |
26 |
|||||||||||||||||||
|
C |
30 |
3 |
71 |
|||||||||||||||||||
|
D |
40 |
4 |
65 |
|||||||||||||||||||
|
E |
64 |
4 |
28 |
|||||||||||||||||||
|
F |
36 |
3/4 |
54 |
|||||||||||||||||||
|
G |
41 |
3/4 |
54 |
|||||||||||||||||||
|
H |
36 |
3 |
66 |
|||||||||||||||||||
|
J |
24 |
3 |
49 |
|||||||||||||||||||
|
Total 9 Buildings shown |
Total 287* Units shown |
|
436 spaces |
Off street parking is generally distributed through the residential development providing parking options immediately adjacent to all buildings. Some areas within the residential portion of the development include excess parking along the interior portion of the development. The graphic above highlights the individual buildings and parking throughout proposed Lot 2. All parking located on both sides of Crossgate Drive (private street segment) is not anticipated for regular use by the residents or guests, and will function for overflow parking during large events.
Proposed Lot 3 is discussed in much detail in the related application SUP-15-00389. The details of this lot are conceptual at this time. The Special Use Permit application is intended to address the procedural code requirements that pertain to Active Recreation Uses located in the RM24 District. All other nonresidential uses are subject to the Preliminary Development Plan. Because these uses are interrelated, the parking discussion included in the Special Use Permit report is also applicable in this staff report.
|
|
In addition to the recreation uses associated with proposed Lot 3, the proposed commercial uses, banquet/reception facility, fitness center, and Hotel are also included as uses for this Lot.
Like Lot 2, Lot 3 includes both platted and unplatted land that will need to be addressed fully with a future submission of a Final Plat and Final Development Plan. Existing improvements include a clubhouse area, portions of the Jayhawk Golf Training Center and portions of the existing golf course. Proposed lot improvements include redesign of the pond that will extend beyond the proposed lot line. A large gas line easement is shown on the Sheet 5 as extending north and south through the golf course and partially encumbering the lot on the east side.
A Final Development Plan is anticipated to address final building elevations, specific parking and landscape standards as well as other code required elements. As a Final Development Plan that review would be administrative and would not be subject to the Planning Commission’s review. Staff has recommended a condition that the Final Development Plans for this project be approved by the Planning Commission following proper notice.
Existing Site Summary |
|
|
Existing Platted Lot |
Site includes unplatted land and portion of platted property known as Jayhawk Golf Training Center Addition. |
|
Proposed Platted Lot |
13.99 Acres |
|
Existing Site Plan |
SP-10-48-90 Alvamar Clubhouse Addition. 6,352 SF existing, 1,968 SF addition – 8,320 SF – 113 parking spaces
SP-1-4-08 – KU Golf Training Center – 970 SF building 278 parking spaces provided |
|
Proposed Use |
Passive and Active Recreation uses associated with golf course · 15,500 SF new clubhouse with lockers, pro shop and restaurant uses · 62,102 SF active recreation area with outdoor pools and accessory buildings Commercial uses including · 18, 482 SF banquet facility · 24 room hotel · 11,800 SF fitness center Office Uses including · 4,000 SF of office space within proposed buildings for administrative uses. |
|
|
Proposed Lot 4 is located at the south end of the proposed development along the east side of Crossgate Drive south of the clubhouse. This Preliminary Development Plan application was submitted with a conceptual development for an Assisted Living Facility that includes 70 assisted living units and 54 independent living units. This use has been abandoned at this time and no use is proposed for Lot 4. The original application included residential uses and detached cabins.
Since no uses are proposed for Lot 4 there is no review of the proposed lot other than the elements related to the subdivision requirements for lots. The proposed lot exceeds the minimum area and is adjacent to a public street (Crossgate Drive). This property includes unplatted land.
The lot includes dense vegetation along the west side of the property. Future development of this lot will require, at a minimum, a revised Preliminary Development Plan and a Final Development Plan. Proposed changes to the existing golf course should be shown on any future application for context and compatibility with the immediately surrounding subdivisions. Currently the existing residential developments that back up to the golf course have a long view of the open space that is the golf course. Development of this lot will alter that view. Mitigation of development such as low profile buildings and/or dense landscaping can provide transition between the existing development and future development in the area.
|
Existing Site Summary |
|
|
Existing Platted Lot |
Site includes unplatted land. |
|
Proposed Platted Lot |
17.302 Acres |
|
Existing Use |
Golf course |
|
Proposed Use |
Unlisted; Revised Preliminary Development Plan and Final Development Plan will be required prior to site redevelopment. No residential uses are proposed for this lot at this time. |
PART B: PRELIMINARY DEVELOPMENT PLAN REVIEW
Off Street Parking
Only uses for proposed Lot 2 are sufficiently detailed to be able to assess final off-street parking requirements. The Preliminary Development Plan provides adequate off-street parking for the residential uses with excess parking that can also be shared with other uses in the development. This phase of the development appears to provide excess parking. Typically, excess parking must be mitigated through implementation of best management practices for stormwater runoff; however, the design is intended to accommodate overflow parking during large events associated with the Golf Course. A detailed drainage study is required for further evaluation. Additionally, the extension of Crossgate Drive as a private street segment includes “on-street” parking that is intended to accommodate overflow parking during events that demand higher than average off-street parking.
Private streets must be designed to meet minimum City public street standards. This will require adequate travel lanes, sidewalks, and curbs. Public improvement plans will also be required for this development. Sufficient notes will be required on the face of the Final Development Plan to address these elements if approved.
|
Off Street Parking calculated by applicant for Lot 2
Per this summary total units would include 430 units with 422 bedrooms. Maximum units allowed per RM24 is 384 units. Note on plan states 292 units. Drawing shows 287 units. These inconsistencies need to be corrected and are addressed in conditions of approval. |
For the purposes of this review, staff calculated parking based on 292 units and 422 bedrooms. Off street parking for Multi-Dwelling residential uses is required at 1 space per bedroom plus one space per 10 units. Parking required for this development intensity is 422 + 30 = 452 spaces.
Off-street parking proposed for Lot 3 is conceptual. Lot 3 includes both Active and Passive Recreation uses as well as Commercial use: banquet/reception facility listed as a Nightclub in the Land Development Code, a 24 room Hotel, and a fitness center. Eating and Drinking Establishments uses such as Fast Order Food or Quality Restaurant uses are included as snack bars and restaurant uses as accessories and amenities of the golf course. A separate table is attached to this report and was also discussed in the related Special Use Permit report for the Active Recreation use.
The applicant calculates that the required parking is 347 spaces for the uses proposed including Active and Passive Recreation uses, Commercial uses, Eating and Drinking Establishment, and a 24 room Hotel. The proposed parking shows 359 spaces. Some uses listed in the applicant’s documentation are clearly accessory to the primary activities, such as a golf cart storage building or locker rooms. Regardless, it is staff’s opinion that parking within Lot 3 is insufficient to meet the proposed uses based on the information provided.
|
Off Street Parking Calculated by applicant for Lot 3
Per this summary total required off-street parking is 347 spaces. |
The attached parking table provides a summary of the uses and minimum required parking estimated by staff based on the available data. Excess parking may be provided on Lot 1, especially if the existing building is removed and the parking lot remains. The plan notes that Lot 1 currently includes 63 spaces. Proposed Lot 2 includes 91 spaces along the private segment of Crossgate Drive. These two parking areas add 154 spaces to the total development.
|
Total Parking Summary |
||
|
Total Nonresidential and Residential parking required |
774 spaces for Nonresidential uses 452 spaces for Residential uses. |
1,226 spaces required |
|
Provided Parking – Existing and Proposed |
|
|
|
Lot 1 – Existing Clubhouse |
63 spaces existing |
63 spaces existing |
|
Lot 2 – Proposed Residential Uses |
544 spaces proposed · 92 total excess spaces · 91 spaces located along Crossgate Drive |
544 spaces proposed |
|
Lot 3 – Proposed Nonresidential uses. |
359 spaces |
359 spaces proposed |
|
Lot 4 |
No uses or spaces identified at this time. |
0 spaces proposed |
|
Total spaces existing and proposed |
|
966 spaces total |
|
Parking deficit |
|
-254 spaces |
The Development Code permits the use of shared parking to meet parking requirements in multi-use developments. A specific evaluation will be made during the Final Development Plan review to determine the sufficiency of parking provided for the various uses within the entire project area.
Density Review
Per Section 20-701(f)(3), a Planned Development project is allowed to calculate density based on the number of bedrooms rather than the number of dwelling units. In this case, the project does not need this allowance to meet the density permitted in proposed zoning district. Therefore, the residential density is calculated on the gross number of units per acre for each lot. Gross density is 18.27 dwelling units as proposed.
[Density: 292 Units/15.98 Acres = 18.27DU/AC]
High Density residential development is defined as being between 16 and 21 dwelling units per acre. This density is consistent with the proposed RM24-PD District proposed for this property.
Residential uses for Lots 1, 3 or 4 are not proposed at this time. The addition of residential uses to Lots 1 and 3 will require additional parking and a revision to the Preliminary Development Plan as well as submission and approval of a Final Development Plan. Since no specific use is proposed for Lot 4 at this time, a revised Preliminary Development Plan and submission and approval of a Final Development will also be required. The maximum residential density was identified at the beginning of this report. Based on the total area included in each lot and the maximum density allowed at 24 DU/Acre, a total of 1,198 dwelling units could be added. At this time only 292 units are proposed, all located on Lot 2.
Building Height Review
This project includes proposed building elevations and cross sections through the residential development for reference. Buildings identified for Lot 2 include 2, 3 and 4 story buildings. The maximum building height for this base district is 45’. Section 20-701(g) allows building height to be increased in a Planned Development. Building height increases must include additional building setback from the boundary of the district. Additional dimensions are needed on the drawing to clearly show the building and parking lot setbacks proposed with this development.
Lot 2 is a “through lot” with street frontage at both the north and south ends of the lot. Building setback from the adjacent street is 25’. Lot lines are not clearly drawn on the Preliminary Development Plan; however, buildings appear to exceed the required setback. The east and west property lines were reviewed as side yards, the minimum building setback for interior side yards is only 5’. All buildings (including covered garages) are located a minimum of 10’ setback from the side lot lines.
A cross section was provided that seems to indicate that the multi-dwelling buildings are greater than the 45’ height permitted by district. The plan must be revised to correctly show maximum building height. The plan includes a note on sheet 2 stating the maximum height of 45’. Building height will continue to be reviewed with the submission of a Final Development Plan for Lot 2 and as a revised Preliminary Development Plan as applicable for the other lots.
Building elevations show the 4-story side and the end sections of the buildings. Building elevations, showing the 3-story side of the buildings, should also be provided for reference.
The plan notes that buildings proposed for Lot 3 are shown as 2 story buildings with the exception of the accessory buildings around the pools.
Open Space Review
Within a Planned Development, a minimum of 20% of the land area is required to be open space. Of that 20% one-half must be “developed as Recreational Open Space”. This application, as proposed, does not provide a summary of proposed open space. Lot 2 requires a minimum of 3.19 acres to meet this design standard. Additionally, 50% of that space is required to be “Recreational Open Space” per Section 20-701(j). Active Recreation uses for the entire development are accommodated in a centralized area located on Lot 3. The plan should state that residents shall have access to the Active Recreation areas included on Lot 3. This plan appears to provide adequate open space around each building with the exception of Building E which has only limited open space and abuts the pool area to the south. Additional review of open space requirements will be included in the submission of a Final Development Plan for this phase. The following graphic highlights staff’s estimation of common open space located in this phase. Required Open Space is 139,218 SF. Estimated Open Space is 141,684 SF.

If the development plan submitted for final approval substantially deviates from the approved plan, then a re-hearing of the revised Preliminary Development Plan is required. This could include changes that increase the residential density by more than 5%, involve a reduction of area set aside of common open space or the increase of building cover more than 5%. For this reason, this Preliminary Development Plan should be revised to show a site summary for Lot 2 that includes the building cover proposed as well as the total pervious and impervious area. This provides a measure for assessment of the proposed project’s consistency of a Final Development Plan with an approved Preliminary Development Plan. This recommendation is reflected as a condition of approval.
Landscape Review
Section 20-701(d) states that all of the standards of the Development Code apply to development within a PD District except as expressly authorized by regulations of Section 20-701. Insufficient information is provided to adequately review landscape requirements for this development. A detailed landscape plan is required with the submission of a Final Development Plan. Each lot will be required to meet landscape requirements for open space, street trees, interior and perimeter parking lot design standards. The property is largely undeveloped or golf course. Staff does not anticipate that waivers and reductions in landscaping will be proposed with Final Development Plan for this property.
Preliminary Development Plan Review Summary
The proposed Preliminary Development Plan for Alvamar PD has been evaluated based upon findings of fact and conclusions per Section 20-1304(d)(9) of the Development Code for the City of Lawrence, requiring consideration of the following nine items:
1) The Preliminary Development Plan’s consistency with the Comprehensive Plan of the City.
But for the golf course, high-density residential development would not typically be located interior to an established neighborhood. These uses are typically located adjacent to arterial and collector streets. The range and scope of uses may result in future reclassification of Crossgate Drive as a collector street. Collector streets typically require a total of 80’ of right-of-way. The majority of the street was constructed with only 60’ of right-of-way. Collector street right-of-of-way is not requested with this application. The center of the golf course is located in the center of the proposed development. The proposed activity area will become a hub within the development.
This property is proposed for high-density residential development with a Planned Development overlay. Recommendations for medium- and higher-density residential development from Chapter 5 of Horizon 2020 are listed below.
|
Proposed Non Residential Uses |
|
|
Passive Recreation Use |
|
|
Golf Couse 7,500 Cart Storage |
|
|
15,500 New Golf Clubhouse 9,500 SF 1st floor 6,000 SF 2nd floor Lockers, pro-shop, restaurant |
|
|
Active Recreation Area |
|
|
2-3 swimming pools 1,200 SF cabana 1,200 SF cabana 2,400 SF cabana Estimated 62,102 SF area total Outdoor snack bar/grill |
|
|
Commercial Uses |
|
|
18,482 SF banquet facility [Nightclub maximum occupancy of 800] |
|
|
1,200 SF Kansas Golf Hall of Fame |
|
|
Hotel with 24 guest rooms and 5 staff |
|
|
11,800 SF Fitness and Wellness Center |
|
|
4,000 SF Office Space |
“Development proposals shall be reviewed for compatibility with existing land uses. The review should include use, building type, density and intensity of use, architectural style, scale, access and its relationship to the neighborhood, and the amount and treatment of screening and open space.” (Policy 1.1, page 5-23)
“Encourage new and existing medium- and higher-density residential development which is compatible in size, architectural design, orientation, and intensity with the surrounding land uses in established areas.” (Policy 3.4, page 5-29)
This project must consider and respond to the existing development within the larger neighborhood. The proposed multi-dwelling development does include massive buildings compared to the architectural style in the area. However, these buildings are generally located some distance from and separated by portions of the golf course that mitigate the size of the buildings.
The proposed development for Lot 2 includes two smaller apartment buildings (2-story, 8 units each) located at the north end as a transition between the existing development to the north and the larger multi-story buildings to the south.
Planned Developments of a certain size allow commercial uses. Proposed Lot 3 includes nonresidential uses that support and augment the golf course and are commercial in nature. The uses as described, and on a limited scale, are compatible with the surrounding area of existing and planned development. These would be the only uses permitted unless the applicant decided to pursue a new rezoning request to permit other commercial uses.
Staff Finding– Given its context within a golf course, the proposal is consistent with policies of Horizon 2020.
2) Preliminary Development Plan’s consistency with the Planned Development Standards of Section 20-701 including the statement of purpose.
Applicant’s Response: “A Planned Development is being suggested for this development in order to give the neighborhoods surrounding Alvamar voice in the process. The attempt to proceed without a PD overlay was met with much opposition.”
The purpose statement includes the following (staff comments follow in italics):
a) Ensure development that is consistent with the comprehensive plan.
This is a unique infill development centered on an existing golf course. Each lot within the development must be considered individually. Only limited information is available at this time. The primary justification of the Planned Development Overlay is to provide a wider range of public input for the proposed development especially as it pertains to the residential elements.
Provision of the direct public street access to Bob Billings Parkway facilitates the ability to accommodate higher density residential development and incorporate that development into the surrounding golf course. Similar high-density residential development at the south end of the development area (Lot 4) would not meet the consistency test.
As discussed previously, the development is consistent with the comprehensive plan as conditioned.
b) Ensure that development can be conveniently, efficiently and economically served by existing and planned utilities and services.
A general review of this proposed development based on the available data shows that the property can be adequately provided with municipal services.
c) Allow design flexibility which results in greater public benefits than could be achieved using conventional zoning district regulations.
The intent of the developer is to provide a mixed use development that supplements and augments the Alvamar Golf Course. Because of the large scope of the project, the applicant is seeking preliminary land use approvals of key uses prior to submission of detailed studies and plans for consideration.
The proposed development includes both public street and private street improvements for access. The benefit of the private street as proposed for the multi-dwelling residential development is the placement of buildings and the providing of “on-street” parking. Details for Lots 1 and 4 are generally not available for review and will require a revised Preliminary Development Plan prior to further development.
d) Preserve environmental and historic resources.
There are no known historical or environmental resources on this property.
e) Promote attractive and functional residential, nonresidential, and mixed-use developments that are compatible with the character of the surrounding area.
The nature of the proposed Multi-Dwelling residential use within this project is of a significantly higher density and comprised of larger buildings than in the immediately surrounding subdivisions though the buildings are buffered by distance and trees. The functionality of the design provides excess parking that can be accommodated along the proposed private street. This design could alleviate existing parking problems in the area that result from large events.
The mixed-use character of the development is derived from the Active Recreation, Passive Recreation and Commercial uses proposed as accessory to the golf course. The most unique feature of the development is combining the Hotel use within the proposed banquet/reception facility as an amenity. It should not be assumed that the Hotel use will only be utilized during special events. If approved, these units will be added to the community inventory for overnight guest stays. It is not reasonable or feasible to consider enforcement of a restriction that such use can only be occupied during special events associated with the golf course or other amenities.
Limiting the amount of commercial uses can be reasonably managed and enforced through the base zoning and the combined development plan approval.
Staff Finding – The proposed Preliminary Development Plan is consistent with the Statement of Purpose of Planned Development as conditioned.
3) The nature and extent of the common open space in the Planned Development.
Section 20-701(j) notes that 20% of the site must be developed as common open space. As each phase of development is submitted for review minimum open space requirements must be met. If the applicant’s intent is that the activity area shown on Lot 3 is intended to serve as the required open space all of the development, then the plan should be revised to include this note. As each phase of development is refined adequate pedestrian connections must be provided to ensure these elements are compatible and useable to future residents.
Staff Finding – This plan includes planned open spaces within the development. Additional detail will be required with future applications for individual lot development.
4) The reliability of the proposals for maintenance and conservation of the common open space.
Additional detail will be required regarding long term maintenance of open space. Any residential development should include a minimum amount of open space for exclusive use of the residential occupants. This project includes amenities directly related to the golf course and are expected to be desirable to existing and new residents in the area. Shared common open space within the development is expected. Adequate pedestrian connections will be required.
Staff Finding –The review assumes the property owner will own and maintain the common open space. The placement of the note on the Preliminary Development Plan will identify the ownership and maintenance responsibilities.
5) The adequacy or inadequacy of the amount and function of the common open space in terms of the densities and dwelling types proposed in the plan.
The minimum outdoor area, as required on Article 20-601(a) is based on the total calculated Dwelling Unit count and not the actual number of dwelling units.
A minimum of 20% of common open space shall be provided for a Planned Development. Within that space, one-half shall be developed as “Recreational Open Space.”
This development includes approximately 16.62 acres (Lots 1 and 3) that will provide common open space within the development as part of the redevelopment of the golf course facility. Reasonable open space should also be provided for the proposed residential development to be located on Lots 2 and 4. The current plan provides only conceptual design. This element will continue to be reviewed with future applications for Final Development Plan.
Staff Finding – The amount and function of the common open space appears to meet the requirements of the Development Code.
6) Whether the Preliminary Development Plan makes adequate provisions for public services, provides adequate control over vehicular traffic, and furthers the amenities of light and air, recreation and visual enjoyment.
This project includes public street access from Bob Billings Parkway to the north and Clinton Parkway to the south. These two access points for this area are a result of the surrounding development. Access from the east or west is not anticipated for this property. This project includes a new public street extension between Bob Billings Parkway and the proposed development. This new access is in response to concerns from residents and property owners located at the north end of the Alvamar PUD (outside of the proposed development project). The current access at the north end is not a public street and is not designed as a public street. The proposed north leg of Crossgate Drive will be constructed as a public street.
The remaining segment of access at the north end will be reconfigured to limit or restrict access from Bob Billings Parkway to the proposed development. The exact plans have not been determined but will be required with the submission of a Final Plat and Final Devleopment Plan. This could include removing the access drive connection to Bob Billings Parkway or restricting turning movements at the north or south end where it will intertsect with the new public street.
Amenites of light and air, recreation and visual enjoyment are generally protected. The orientation of buildilngs to the golf course should continue to be reviewed with future applications.
Staff Finding – The Preliminary Development Plan’s provisions for Fire/Medical access will continue to be reviewed as part of the Final Development Plan as well as the construction documents.
7) Whether the plan will measurably and adversely impact development or conservation of the neighborhood area by:
a) Doubling or more the traffic generated by the neighborhood;
This property is located south of Bob Billings Parkway and north of Clinton Parkway. The proposed development is self-contained within the Alvamar PUD and will result in increased traffic. A new public street extension is proposed to mitigate traffic in the north end of the development. Other recommended improvements include turn lanes and signal timing changes to also improve the traffic in the area.
b) Proposing housing types, building heights or building massings that are incompatible with the established neighborhood pattern; or
The building type for the residential uses includes multi-story multi-dwelling structures on Lot 2. Much of the surrounding area is open space as a part of the golf course facility. Additional residential uses include detached, attached, and multi-dwelling uses surrounding the golf course. The proposed request is clearly a deviation from the existing development pattern. Multi-dwelling uses are typically located at the fringes of the neighborhood. The proposed multi-dwelling residential use includes 2, 3 and 4 story buildings. The nonresidential uses include 1 and 2 story buildings. Maximum building height in this district is 45’. The Preliminary Development Plan does require revisions to the drawing to show compliance with this maximum height.
Specific land uses for Lot 1 and Lot 4 are not provided at this time. Building elevations for proposed improvements are not provided for development of Lot 3. Buildings are noted as 2-story. The Commission could include restrictions on the maximum building height and or total number of stories as a condition of approval.
c) Increasing the residential density 34% or more above the density of adjacent residential properties.
The proposed development is predominantly surrounded by the golf course. Residential development south of proposed Lot 1 includes duplex housing with a private street providing access to these dwellings known as Quail’s Nest at Alvamar. Density of this area is 4 dwelling units per acre. The residential development immediately north of proposed Lot 2 along the existing private street segment of Crossgate Drive known as Woodfield Meadows is developed at 5 dwelling units per acre. Development along the south leg of Crossgate Drive and Greenbrier Drive is also approximately 4 dwelling units per acre. The proposed development at 18 dwelling units per acre is approximately 56% higher density than the surrounding area.
Staff Finding— The proposed development is unique in that it does not immediately abut residential development except in some specific areas. Access is limited to this overall area and change will be noticeable as the area develops. Traffic impacts and building type and massing have been two dominant concerns expressed by residents in the area.
An additional impact on residents will be construction activity. Staff recommends that the north leg of Crossgate Drive be constructed prior to any phase of development for this project and then used as the primary construction access for development of Lots 2 and 3.
8) Whether potential adverse impacts have been mitigated to the maximum practical extent.
Potential adverse impacts with multi-dwelling apartments can occur with lighting that extends onto adjacent properties, or with balconies that overhang single-dwelling residences. A photometric plan will be required prior to approval of the Final Development Plan to insure there is no negative impact from the exterior lighting.
Traffic is partially mitigated as discussed with the addition of the new street extension south of Bob Billings Parkway and intersection improvements at Clinton Parkway. Staff recommends these public improvements be constructed as an initial phase of development prior to any development of the project.
Details are unavailable for development of Lots 1, 3, and 4 except as described conceptually for Lot 3. It is anticipated that multiple revisions to the Preliminary Development Plan will be required as Lot 1 and Lot 4 are developed in the future.
Staff Finding – Possible adverse impacts of exterior lighting will be addressed with a photometric plan to insure there is no spillover light. Traffic impacts are recommended to be mitigated initially as part of the construction of the project. Additional review will be required as more detail is made available for development of Lot 1 and Lot 4.
9) The sufficiency of the terms and conditions proposed to protect the interest of the public and the residents of the Planned Unit Development in the case of a plan that proposes development over a period of years.
Full development of the property included in the boundary of the project is expected to be phased. The applicant has not provided a phasing plan. Specific improvements must be made initially to support the development as well as the initial construction. These improvements should be noted on the face of the plan. A development phasing plan is also recommended and should be provided prior to the submission of a Final Development Plan for any phase of the project.
Staff Finding- As conditioned adequate protections for the surrounding neighborhood are addressed.
Staff Review and Conclusion
The proposed Preliminary Development Plan conforms to the basic development requirements and is, in this application, intended to address broad topics such as land use, maximum allowed density and general placement of uses. Nonresidential development is intended to be accessory to and supportive to the existing golf course that surrounds the development. A varying degree of additional documentation is needed prior to the development of individual lots as discussed in the body of the report.
[1] Required off-street parking is provided in separate exhibit and details parking by use for proposed development.